Bed icon  6  Bath icon  3

6 bed Apartment - To Let
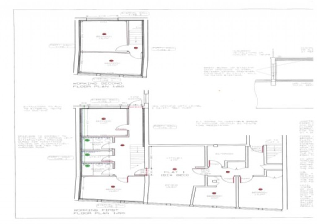
Flat 1, 18 Sidwell Street, Exeter
£165 pppw

Arrange Viewing
Apply for Property
  • Quality Accommodation in City Centre
  • Six Double bedrooms - Three Shower Rooms
  • Spacious Lounge and well-equipped Kitchen

STUDENT LET 

Renovated City Centre Apartment. Six Double Bedrooms. High Quality Finish. Very large living room and modern kitchen. Three shower rooms/wc's. UPVC double glazing. Close to John Lewis and Campus. EPC rating D66.

 

You can arrange to visit the property – please call 01392 433866 to arrange an appointment - or apply online. 

Property Description:

Stylish renovated 6 double bedroom duplex apartment, fully furnished and great location in the City Centre - and short walk to University. All good size bedrooms and are well-equipped with new furnishings throughout. The property has a secure entrance and is conveniently located on Sidwell Street close to the John Lewis department store. A full selection of shops are to hand including supermarkets and St Sidwell Point Leisure Centre. Just a 15 minute walk to the University campus. Modern and well-equipped fitted kitchen. Separate utility room complete with washing machine and dryer. Also three shower rooms/wc's, newly fitted energy efficient electric heating, upvc double glazing - EPC D66

Rent is £165 per person per week - £715 per person per month. (Excluding bills)

Deposit of £600 per person to be paid. (The holding deposit of £100 per person will be transferred to the deposit account leaving a balance of £500 to pay.)

11 month fixed term tenancy

THE ONLINE APPLICATION PROCESS IS AVAILABLE THROUGH OUR STUDENT@CARDENS WEBSITE

To make an application choose who will be your lead tenant. They can make a single application for your entire house group and will need to provide details of all the tenants and their guarantors. This process starts with a single click on the application button above. Once submitted you will be directed to a screen to pay the holding deposit of £100 per person

Please note that once you submit your application the property will appear as let agreed. To secure the property you must complete the payment process which is displayed after submitting your application.

The holding deposit will be set against the full deposit due when the tenancy agreement is signed. If you withdraw your application, you will forfeit the holding deposit paid. If the landlord withdraws the property, or does not accept your application, the holding deposit paid will be refunded.

agent

For further details on this property please call us on:
01392 433866

Arrange Viewing
Apply for Property

Floorplans For Sidwell Street, Exeter
X

X

Viewing Request

How did you hear about Students@Cardens?